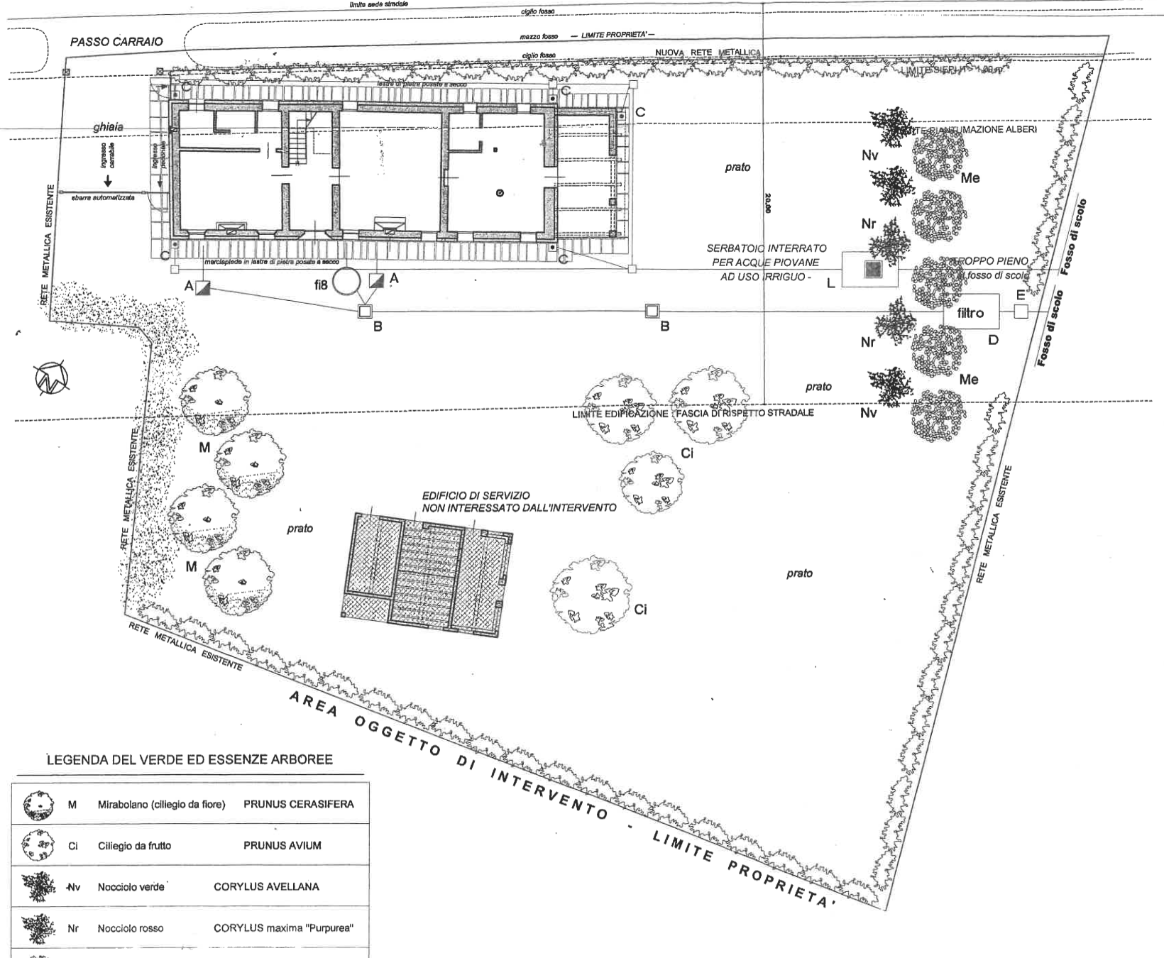
Via Sottofiume Boncellino n.45
Descrizione annuncio
BAGNACAVALLO, BONCELLINO: Nelle prime campagne del paese, disponiamo di soluzione indipendente libera su quattro lati su lotto di 1662mq, con servizio in corpo staccato di 91mq.L'immobile, che necessita di completa ristrutturazione, si sviluppa su due livelli dove al piano terra è predisposta la zona giorno composta da ingresso, soggiorno, cucina, ripostigli e locale sgombero. Salendo le scale al piano primo troviamo la zona notte composta da bagno oltre a tre camere da letto matrimoniali. Completa la soluzione il servizio in corpo staccato.










